1915 分集水器系列
分水器的簡介及用途:
分、集水器是水系統中,用于連接各路加熱管供、回水的
配、集水裝置。按進回水分為分水器,集水器。所以稱為分集
水器或集分水器,俗稱分水器。地暖、空調系統中用的分水器
材質宜為紫銅或黃銅、自來水供水系統戶表改造用的分水器多
為PP或PE材質。供回水均設排氣閥,很多分水器供回水還設有
泄水閥。供水前端應設"Y”型過濾器。供水分水管各支管均應
設閥門,以調節水量的大小。
分水器常用于:地板采暖系統中的,分集水器管理若干的
支路管道,并在其上面安裝有排氣閥,自動恒溫閥等, -般為
銅質較多。口徑小,多位DN25-DN40之間。
產品功能:
1、分水管上帶各流量控制閥;
2、集水管.上帶各回路獨立手動控制閥。
技術參數:
1,村質:黃鋼
2、適用介質:水
3,適用水源: 0~110C
4、工稱壓力: PN10
5、主管口徑: DN25~ DN32
6、支管口徑DN20x16. DN20x20
7.管螺蚊將合ISO 228標準
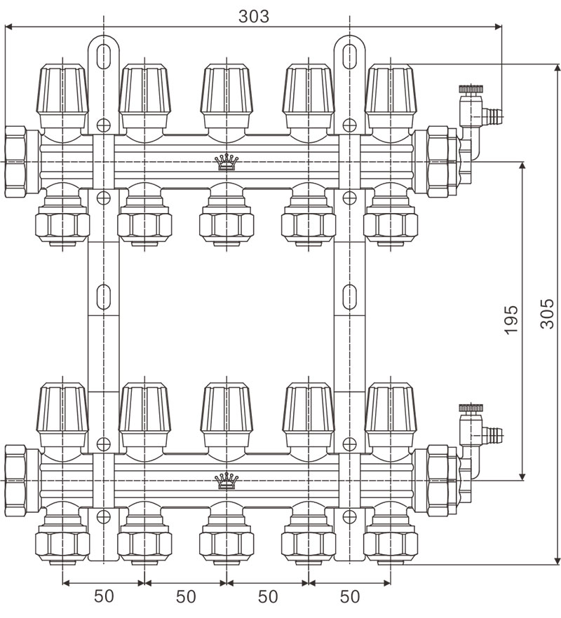
產品尺寸圖:

產品性能:
*鍛造分水器的阻力較小,對能力的損失更小.
*采用獨立控制設計,滿足環保節能要求
*安裝手動排氣閥用戶可自已將管路內的氣體排出,
以保證不會用水蒸氣在地下盤管中流動而產生噪聲。
*供水溫度宜采用35~50C不宜超過60°C
*供氣系統壓力不宜超過0.8MPa
*規格: DN25、DN32、DN40、DN50
*適用介質:水

同一系列












